星空网站在线登录官网入口-星空(中国)

ELEVATOR DOOR SYSTEM电梯门系统

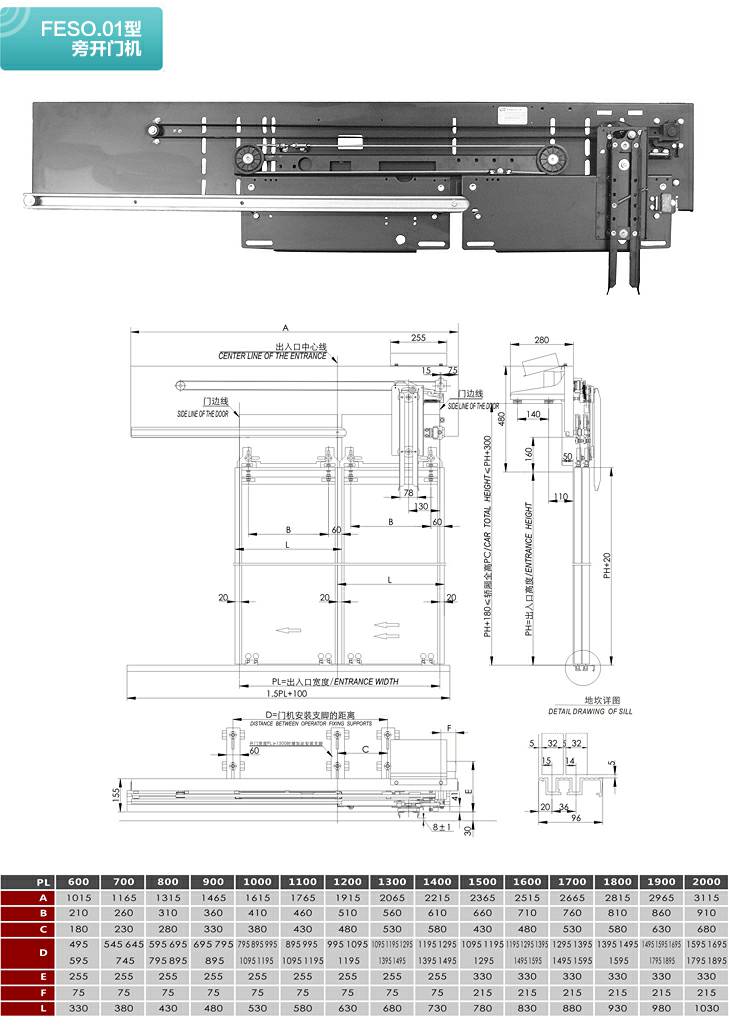
FESO.01型旁开门机